☆开发商为北京兴创中和房地产开发有限公司,项目位于北京市大兴区采育镇,产品有类独栋、联排、双叠拼、四叠拼等,产权 70 年,现房毛坯交付,市政集中供暖,由北京兴达兴物业管理有限公司服务。
☆建筑面积 252577.5 平米,容积率 1.05,绿化率 30%,车位 1:2.2,楼栋数 1098 套,建筑设计为北京设计建筑研究院,园林设计为奥雅景观设计,物业费因产品不同而异。

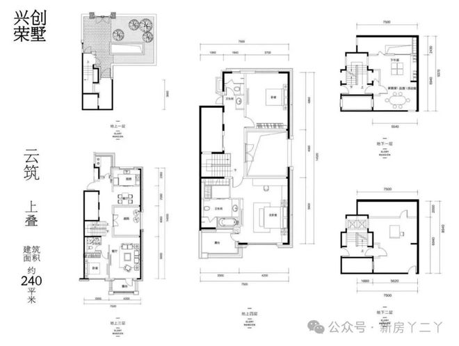
☆户型结构:(地上三层,地下两层)地上面积约270平米、负一层135平米、负二层130平米
☆挑高:一层3.5米,二层3.2米,三层3.2米,负一层3.2米,负二层3.6米。
☆赠送:2个产权车位,花园,露台,私人电梯(德国蒂森克虏伯品牌),中央空调,新风,地暖等
☆挑高:一层3.5米,二层3.2米,三层3.2米,三层中间最高6.3米,负一层3.3米,负二层3.6米。
☆赠送:2个产权车位,中式的门楼,花园,露台,-2层(属于赠送),私人电梯(德国蒂森克虏伯品牌),中央空调,新风,地暖等

☆挑高:一层3.5米,二层3.2米,三层3.2米,三层中间最高6.3米,负一层3.3米,负二层3.6米。
☆赠送:2个产权车位,中式的门楼,花园,露台,-2层(属于赠送),私人电梯(德国蒂森克虏伯品牌),中央空调,新风,地暖等

☆面积赠送:1个产权车位,花园,顶层露台,私人电梯(德国蒂森克虏伯品牌),中央空调,新风,地暖等

☆面积赠送:1个产权车位,花园,露台,私人电梯(德国蒂森克虏伯品牌),中央空调,新风,地暖等
★区位:大兴核心区位的亦庄经济开发区采育板块,地处亦庄、北京新机场和城市副中心三大板块交汇处,是连接首都机场与新机场的核心纽带,也是北京东部发展带的重要产业基地。
★周边:紧邻亦庄新城核心,距副中心和新机场约25公里,距亦庄约15公里。
★规划:2019年亦庄新城规划中,将采育工业园正式纳入亦庄新城范围,为亦庄新城产能重要一环。采育是整个大兴南部唯一列入新城范围的区域。
☆亦庄同仁医院线公里)起点(项目)→采林路→上京沪高速→马驹桥口出→黄马路→马桥北街→西环南路→终点(亦庄同仁医院)
☆国贸线公里)起点(项目)→采林路→上京沪高速→分钟寺桥出口驶入三环→行驶 5 公里→终点(国贸)
☆大兴新机场线公里)起点(项目)→福源路→采万路→安采路→庞安路→京台高速→大兴机场北线高速→终点(大兴新机场)
☆通州(北京市政府)线公里)起点(项目)→采林路→上京沪高速→马驹桥出口→南六环→潞洋桥西路→运河东大街行驶至清盛路或行驶九周路、张采路、张凤路→终点(通州副中心北京市政府)。